Rif: 24138
GENOVA
GENOVA - zona Nervi
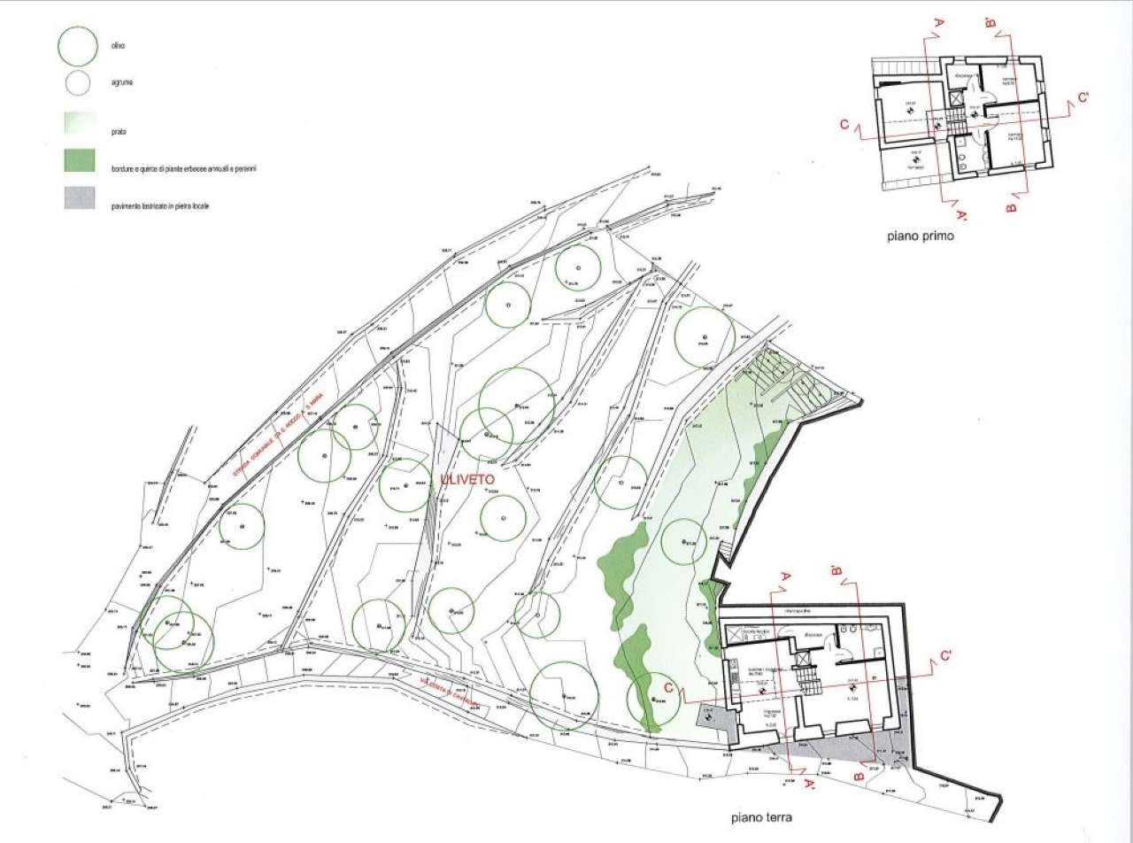
Rif: 24138 - NERVI S. ILARIO (LOCALITA' SAN ROCCO ) - Siamo lieti di proporre in una delle zone più panoramiche e caratteristiche della Riviera, Villa carrabile da costruire con progetto approvato ( inizio lavori immediato ) unifamiliare su due piani ( mq 145 ) che prevede bella divisione tra zona giorno e zona notte: al piano terra ingresso, cucina vivibile, salone, bagno, dispensa e locale tecnico; al piano superiore 3 camere, bagno, grande dispensa con finestra, possibilità soppalco ( mq 14 ), meraviglioso terrazzo Completa la proprietà terreno circostante ( mq 1200 ) destinato ad uliveto e giardino di erbe aromatiche ed agrumi. Vista mare monti meravigliosa. Posizione comoda. Opportunità unica. Assolutamente da vedere. PRENDI APPUNTAMENTO per visitare la posizione, telefonando al 3357368279 - 0106981018 ed anche per valutare il tuo attuale immobile e conoscerne il reale valore così da poter contare sulla cifra più giusta per affrontare l'acquisto della tua nuova abitazione con serenità.
