Rif: 23115
GENOVA
GENOVA - zona Nervi
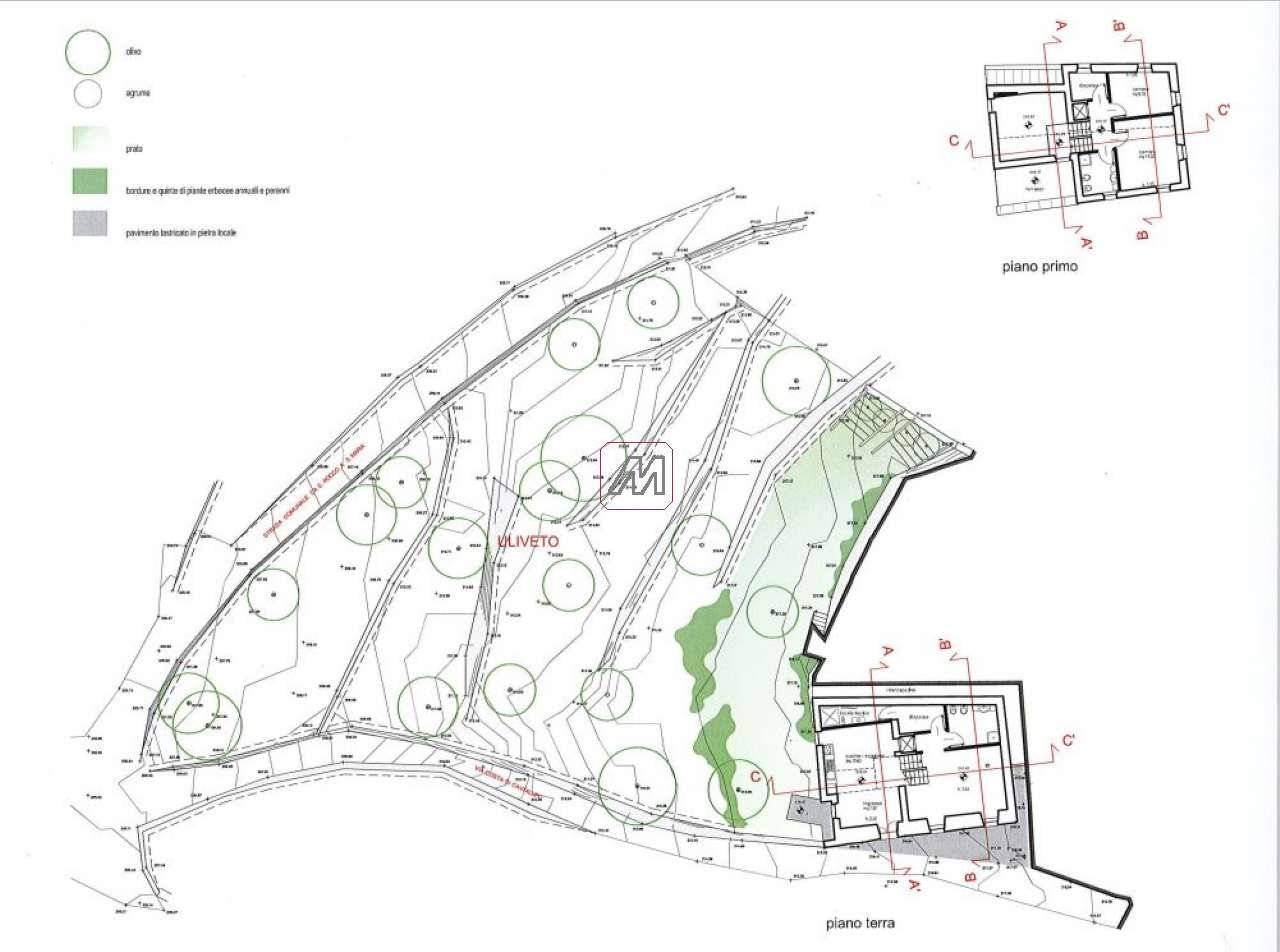
Rif: 23115 - NERVI S.ILARIO ( LOCALITA' SAN ROCCO ) - Siamo lieti di proporre in una delle zone più caratteristiche della Riviera Villa da costruire con progetto approvato ( inizio lavori immediato ) unifamiliare su due paini ( mq 140 ) possibilità soppalco ( mq 14 ) , biservizi, meraviglioso terrazzo ( mq 9 ). Completa la proprietà terreno circostante ( mq 1200 ) destinato ad uliveto e giardino di erbe aromatiche ed agrumi. Vista mare e monti meravigliosa. Posizione comoda. Opportunità unica. Assolutamente da vedere PRENDI APPUNTAMENTO per visitare il posto e vedere progetto telefonando al 010 6981018 - 335 7368279 ed anche per valutare il tuo attuale immobile e conoscerne il reale valore così da poter contare sulla cifra più giusta per affrontare l'acquisto della tua nuova abitazione con serenità.
